Series TSTM-DC
Advanced Motorized Torque Test Stand
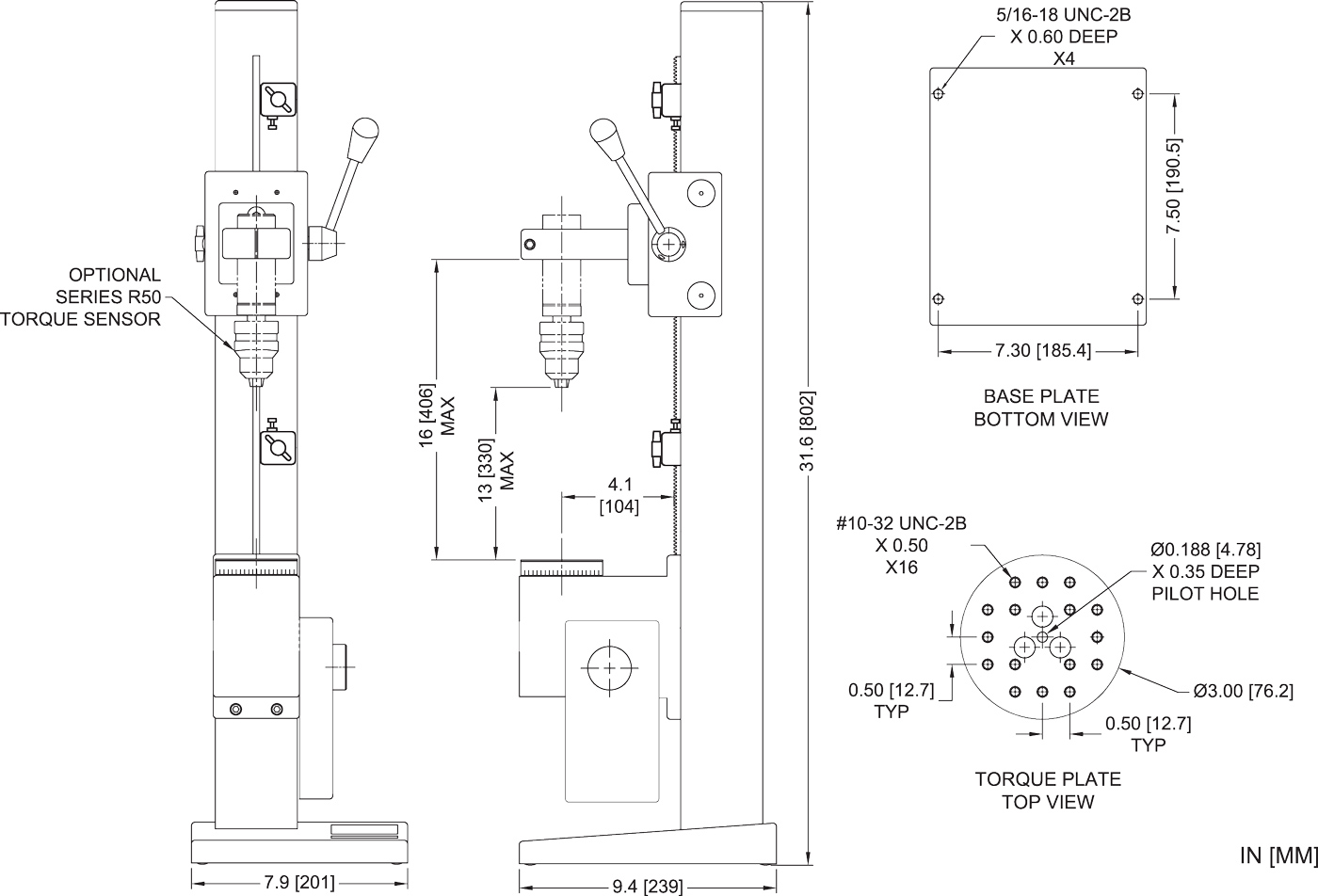
The stands include a torque loading plate with tapped holes for grip and fixture mounting. Stepper motor design eliminates speed variation with load. A lever-operated slider with travel stops makes engaging and disengaging samples quick and efficient. A modular mechanical design allows the stand to be configured for a variety of applications.
The controller features an integrated angle display and output, programmable angle travel limits, PC control capability, programmable cycling, auto return, overload protection, password protection, and more.
Features
- Configurable clockwise and counter-clockwise speeds, RPM or °/s
- Digital angle indicator
Rotational travel is indicated in degrees or revolutions, with RS-232 output of angle data. - Angle limits
Stop at or cycle between configurable upper and lower angle limits, in degrees or revolutions. - Angle dial with 2° resolution
- Auto-return
The torque table rotates to an angle limit or torque limit (requires a Model M7I or M5I indicator and AC1108 multi-function cable), stops, and reverses direction at full speed to the other angle limit or torque set limit. - Cycling
Same as auto-return, but with the ability to program up to 100,000 cycles. Configurable dwell time for upper and lower limits (set independently) can be set up for up to 10,000 seconds. CW and CCW speeds may be set independently. - Configurable button functions
CW and CCW button presses can produce one of the following motions: (1) momentary (button-hold), (2) maintained (button release) , or (3) automatic (press and hold for momentary, or quick press and release for maintained motion). - Overload protection
Protects the torque sensor against overload (requires a Model M7I or M5I indicator and AC1108 multi-function cable). - PC control
Control the test stand with your own application using a supplied library of motion control and data collection serial commands.
Note the following co-requirements:
- Model M7I or M5I indicator
- AC1108 multi-function cable
- AC1104 serial cable - Password protection
Prevents unauthorized changes to settings.
Specifications
| Model | Maximum torque | Speed range |
|---|---|---|
| TSTM(H)-DC | 100 lbFin [11.5 Nm] |
0.01 – 15 RPM [0.05 – 90°/s] |
| TSTM(H)-DC-1 |
200 lbFin [22.0 Nm] at 7.5 RPM, decreasing proportionally to 100 lbFin at 15 RPM |
0.01 – 15 RPM [0.05 – 90°/s] |
| TSTM(H)-DC-2 |
25 lbFin [2.8 Nm] |
0.04 – 60 RPM [0.2 – 360°/s] |
| All models | |
|---|---|
| Speed accuracy | ±0.2% of setting, ±0% variation with load |
| Rotational travel accuracy: | ±0.7° [0.002 revolutions] |
| Rotational travel resolution: | 0.1° [0.01 revolutions] |
| Rotational travel repeatability: | 0.1° [0.0003 revolutions] |
| Throat: | 4.10″ [104 mm] |
| Manual adjustment: | 12° / adjustment knob revolution |
| Maximum slider travel: | 15.5″ [394 mm] |
| Slider travel rate: | 1.047″ [26.6 mm] / lever revolution |
| Universal power supply: | 80-250 VAC |
| Model No. | HS Code | ECCN | Country of Origin |
|
TSTM-DC,-1,-2 TSTMH-DC,-1,-2 SP-2736-12,-24,-42 SP-2496 SP-2624 |
9024900000 | EAR99 | USA |
| CERT-DS | 9024800000 |
In The Box
(1) DC controller
(1) Controller connection cable
(1) Indicator mounting kit
(1) Encoder cable
(1) Column cap with hardware
(1) Allen wrench set
(4) Thumb screw for mounting indicator
(1) Power cord
(1) Base with hardware (TSTM-DC)
(2) Mounting leg with hardware (TSTMH-DC)
(1) Additional column cap with hardware (TSTMH-DC)
Optional Equipment
|
Series R50 universal torque sensors Mount directly to the test stand. 6 capacities are available, from 10 ozFin to 100 lbFin [7 to 1,150 Ncm]. |
|
Model MR55-200 torque sensor 200 lbFin [22 Nm] capacity. Mounts to the test stand with AC1016 adapter. |
|
Adapter, MR55-200 to test stand (AC1016) |
|
Torque indicators Displays the torque value measured by a torque sensor. Model M5I or M7I is recommended. |
|
![]() MESUR®gauge Plus software (15-1005) Tabulates and plots load vs. time or load vs. travel. Also calculates statistics, exports to Excel, and more. |
|
Multi-function cable, indicator to controller (AC1108) Connects an indicator to the controller. This single cable is used to transmit set points, overload signals, and torque data. |
|
Serial cable, controller to PC (AC1104) For communicating with a PC for data output and PC control. |
|
RS-232 to USB adapter (RSU100) Converts RS-232 to USB output. |
![]() |
Horizontal / wall mounting kit (TSF002) Pair of mounting legs for adapting the test stand to a bench, instead of the base. |
| Column extension Select from several extension lengths. Extensions increase clearance between the torque sensor and torque mounting plate. See Ordering Information table. |
|
|
Grips and attachments For a variety of applications. |
|
Axial compensator (AC1029) Allows for axial movement in threaded fasteners, bottle caps, and similar torque testing applications. |
Ordering Information
All test stands include a power cord with US prong style. Select alternative pronged power cords from the Additional Items to Consider table.
| Model | Description | US Price |
|---|---|---|
| TSTM-DC | Torque stand, motorized, vertical, 100 lbFin | $8,925.00 |
| TSTMH-DC | Torque stand, motorized, horizontal, 100 lbFin | $8,925.00 |
| TSTM-DC-1 | Torque stand, motorized, vertical, 200 lbFin | $9,950.00 |
| TSTMH-DC-1 | Torque stand, motorized, horizontal, 200 lbFin | $9,950.00 |
| TSTM-DC-2 | Torque stand, motorized, vertical, 60 RPM max, 25 lbFin | $9,660.00 |
| TSTMH-DC-2 | Torque stand, motorized, horizontal, 60 RPM max, 25 lbFin | $9,660.00 |
| Additional Items To Consider | ||
| AC1108 | Multi-function cable, M7I/M5I indicator to test stand | $175.00 |
| AC1104 | Serial cable, test stand to PC | $50.00 |
| RSU100 | Communication adapter, RS-232 to USB | $135.00 |
| TSF002 | Horiz. / wall mounting kit | $270.00 |
| AC1016 | Mounting adapter, MR55-200 to test stand | $110.00 |
| SP-2736-12 | Column extension, 12 in. / 305 mm | $375.00 |
| SP-2736-24 | Column extension, 24 in. / 610 mm | $575.00 |
| SP-2736-42 | Column extension, 42 in. / 1065 mm | $895.00 |
| SP-2496 | Upgrade to 200 lbFin, factory retrofit | $965.00 |
| SP-2624 | Upgrade to 60 RPM, factory retrofit | $725.00 |
| AC1139 | Power cable, EUR | $10.00 |
| AC1140 | Power cable, UK | $10.00 |
| AC1141 | Power cable, AUS | $10.00 |










